Hopp til hovedinnhold
1 / 0

Funksjonell planløsning | 3 soverom | Overbygd terrasse

Sulusåsveien 1 3612 Kongsberg
Pris fra
10 490 000 kr
Hans Aasmundrud
Boligrådgiver
Prosjektet bygges av

Nordbohus Modum AS

Nordbohus Modum AS ble etablert i 2006, og er en del av Nordbohus-kjeden. Vi holder til i Vikersund og består av til sammen 18 faglig medarbeidere i administrasjonen og på byggeplass. Vi bygger i følgende kommuner: Modum, Drammen, Flesberg, Flå, Geilo, Gol, Hemsedal, Hol, Hole, Holmestrand, Horten, Jevnaker, Kongsberg, Krødsherad, Lier, Notodden, Ringerike, Sande, Sigdal, Øvre Eiker og Ål.

Gå til forhandlersiden

Nøkkelinfo

  • Soverom

    3
  • Eierform

    Eier (Selveier)
  • Boligtype

    Enebolig
  • Gårdsnr.

    8313
  • Bruksnr.

    20

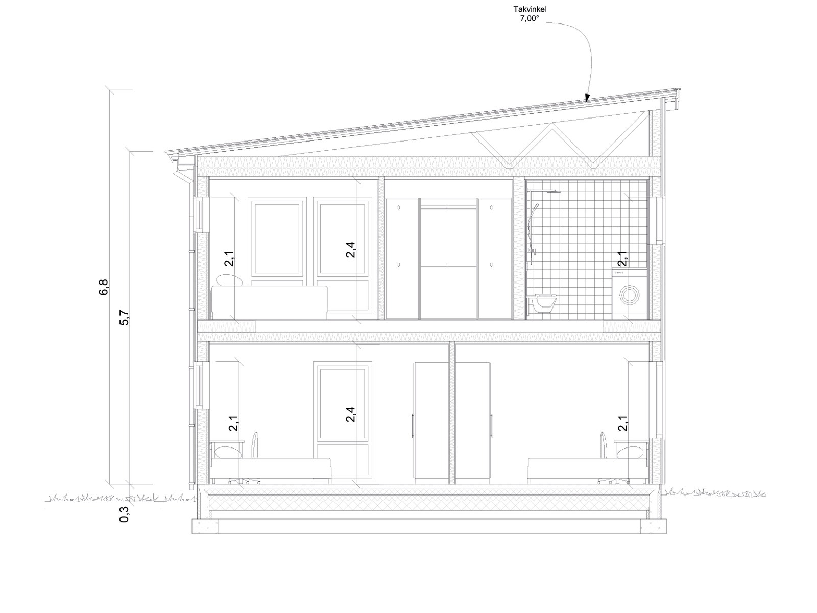
Moderne enebolig med garasje og carport bygges sentralt i Kongsberg

Denne eneboligen har en funksjonell og gjennomtenkt planløsning som strekker seg over to etasjer. Den romslige gangen i 1. etasje har god plass til garderobeskap for lagring av yttertøy, og med vask/bad like ved kan man enkelt spyle ren både seg selv, unger og dyr om nødvendig. 1. etasje har også to soverom og en liten stue, med mulighet til å gjøre stuen om til et ekstra soverom.

I 2. etasje har du en stor og romslig stue/kjøkken løsning med god plass til spisebord. Med kjøkkenøy og peis har du husets midtpunkt hvor familien kan samles til matlagning og fyr i peisen. I andre enden av 2. etasje finner du et større soverom med egen garderobe og bad. Samt en bod for ekstra lagring, som for eksempel kan brukes som et spiskammer.

Ute finner du en veranda med takoverbygg, samt carport og garasje med sportsbod.

Detaljer:

  • Flislagt gulv i gang/hall
  • Fliser på gulv og vegg på vask/bad
  • Fliser på gulv og vegg på bad
  • Alle flislagte gulv har varmekabler
  • 3 stav eikeparkett (Abetone) eller klikk vinyl fra Kährs
  • Ved kjøp av kjøkken hos Sigdal Kjøkken eller Drømmekjøkken er det en medtatt sum i kontrakten
  • Baderomsinnredning fra Linn Bad
  • Sparklet og malt himling i alle rom (ikke helsparkling)
  • Sparklet og malte vegger i stue/kjøkken, trappegang og gang/hall
  • Ferdigmalte veggplater i stue (1. etasje), soverom, bod og garderobe
  • Peis fra Jøtul, type F-233
  • Liggende kledning, grunnet + mellomstrøk fra fabrikk


Omkostninger
Rentekostnader i byggeperioden er inkludert i kjøpesummen. Følgende omkostninger påløper for kjøper:

  • Dokumentavgift til staten, 2,5% av tomtepris: ca. kr. 75 000
  • Tinglysing pr. hjemmelsdokument: kr. 585
  • Tinglysing pr. pantedokument: kr. 585
  • Attestgebyr: kr. 230


Garanti
Det vil bli stilt garanti fra utbygger til kjøper. Ved kjøp før ferdigstillelse utgjør garantien 10% i byggeperioden og 5% i garantiperioden på 5 år fra overtagelse, og er beregnet av opprinnelig kjøpesum mellom utbygger og kjøper.

Det tas forbehold om feil og mangler i denne annonsen. Det må regnes med små avvik på romstørrelse fra skissetegninger til byggesøknadstegninger/arbeidstegninger. Produkter/materialer og farger kan endres dersom utbygger ser behov for dette, frem til eneboligen er solgt.

Velkommen til Sulusåsveien

Sulusåsveien ligger i et rolig og etablert boligområde på Kongsberg – et område som kombinerer trygghet, naturnær beliggenhet og kort vei til det meste. Her bor du skjermet og fredelig, samtidig som du har enkel tilgang til både sentrum, skoler, barnehager og daglige servicetilbud.

Eiendommen har gode solforhold hvor du kan nyte morgenkaffen i behagelig morgensol med utsikt ut mot byen og avslutte dagen med kveldssol på terrassen. Beliggenheten gir en god romfølelse og behagelig atmosfære både ute og inne – perfekt for både avslapning og sosiale sammenkomster.

Området er spesielt attraktivt for barnefamilier, med lite gjennomgangstrafikk og gode oppvekstsvilkår. Med trygge skoleveier, lekeområder i nærheten og kort avstand til flotte turområder kan barna sykle fritt i nabolaget og vokse opp i grønne omgivelser.

For den aktive byr Sulusåsveien på umiddelbar nærhet til marka med flotte turstier og lysløyper. Enten du foretrekker rolige søndagsturer, løpeturer i skogen eller ski på vinterstid, ligger alt til rette for en aktiv livsstil rett utenfor døren.

Samtidig er det kun 1 km til Kongsberg sentrum med hyggelige butikker, caféer, kulturtilbud og togforbindelse mot Drammen og Oslo – perfekt for deg som pendler, men ønsker å bo i rolige og naturskjønne omgivelser.

Naturnært, solrikt og familievennlig i Kongsberg - Sulusåsveien, et sted det er godt å komme hjem til.

Teksten er delvis AI-generert.

Meld interesse

Din kontaktinformasjon

Din melding

Ved å sende inn skjema opprettes det en brukerprofil på nordbohus.no, og dine opplysninger lagres i vår digitale løsning. Utfyllende informasjon om behandlingen og hvordan du kan slette din profil finner du i vår personvernerklæring. Nordbohus vil sende deg nyhetsbrev basert på ditt kundeforhold hos oss. Dersom du ønsker å reservere deg mot nyhetsbrev, gjør du det enkelt ved å krysse av nedenfor.