Hopp til hovedinnhold
1 / 0

Én bolig er reservert!

Bokfinkveien 2a / 2b 8907 Brønnøysund
Pris fra
2 380 000 kr
Bjarne Nyrud
Markedssjef
Prosjektet bygges av

Bernhard Olsen AS

Siden 1974 har Bernhard Olsen AS realisert over 1000 boligdrømmer i Nordland. Vi brenner for å møte alle våre unike kunders behov og utvikle gode løsninger! Vårt hovedkontor er i Mo i Rana, og vi har også en avdeling i Brønnøysund. Vi tilbyr Sintefgodkjente hus, produsert i elementer i vår egen fabrikk lokalisert i Mo i Rana. Vi prosjekterer og bygger alt fra Mini-hus til større prosjekter som flermannsboliger. Vi bygger med den største glede i et stort geografisk område da vi leverer til hele Nordland, fra Bindal i sør – til Hamarøy i nord.

Gå til forhandlersiden

Nøkkelinfo

  • Soverom

    3
  • Eierform

    Andel
  • Primærrom

    128 m2

Velkommen til Bokfinkveien 2A og 2B!

Her bygges nye, moderne tomannsboliger i Brønnøysund. Her får du et hjem som gir deg både romslighet med 3 soverom, utsikt og to flotte uteplasser – bo forutsigbart og trygt i borettslag.

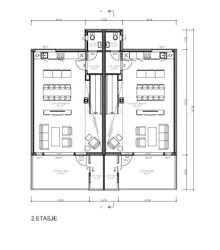
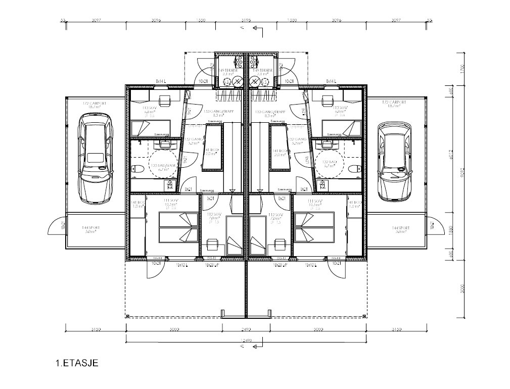
Boligen strekker seg over to plan og byr på 128 m² BRA med tre soverom, to bad og en luftig stue- og kjøkkenløsning. Fra stuen kan du gå rett ut på en solrik balkong med utsikt, mens hovedsoverommet i første etasje har egen utgang til en markterrasse. Perfekt enten du vil starte dagen med en kopp kaffe i morgensola eller nyte sommerkveldene med familien.

Her er alt lagt til rette for en komfortabel hverdag:

  • Tre soverom med god plass til familien.
  • To bad med moderne løsninger og varmekabler.
  • Kjøkken fra Nygård med integrerte hvitevarer, og mulighet til å sette ditt eget preg på fronter, farger og materialvalg om du kommer tidlig inn i byggeprosessen.
  • Carport og to parkeringsplasser, samt tre boder for praktisk lagring.
  • Vedovn fra Nordpeis og balansert ventilasjon med varmegjenvinning som gir et lunt inneklima året rundt.


Beliggenheten gjør hverdagen enkel: gangavstand til skole, barnehage, ballbinge og butikker, samtidig som du får roen fra naturen tett på. Dette er en bolig som passer like godt for førstegangskjøpere som for barnefamilier som ønsker et trygt, forutsigbart og moderne hjem. Byggestart er planlagt i 2026, avhengig av forhåndssalg, noe som gir deg muligheten til å påvirke standard og løsninger.

Stue
Den åpne stue- og kjøkkenløsningen gir en lys og luftig atmosfære med store vindusflater som slipper inn dagslyset. Her får du både rom for familiekos og utsikt som setter stemningen året rundt.

Kjøkken
Kjøkkenet er boligens naturlige samlingspunkt, perfekt for deg som liker å invitere venner og familie på middag. Innredningen leveres i moderne standard, med mulighet for oppgraderinger dersom du ønsker mer personlig preg. Det er også god plass til spisebord hvor dere kan nyte både hverdagsmåltider og festmiddager.

Soverom
Boligen har tre romslige soverom, alle med god plass til garderobeløsninger. Hovedsoverommet er ekstra praktisk med skyvedørsgarderobe og direkte utgang til en markterrasse, en luksus i hverdagen når du vil starte dagen ute. Kanskje du vil ha kaffemaskinen på soverommet, og gå rett ut for å ta morgenkaffen i sommersolen?

Bad
Med to bad i boligen blir hverdagen enklere. Gulv med varmekabler gir en lun komfort, og våtromsplater gir et tidløst og stilrent uttrykk. Hovedbadet i første etasje er utstyrt med dusj, vegghengt toalett og innredning med god skapplass. På hovedbadet er det også opplegg for vaskemaskin, slik at du får en funksjonell vaskesone integrert. I 2.etasje er det et toalettrom/lite bad.

Balkong og uteplass
Boligen byr på to flotte uteplasser. Fra stuen har du utgang til en stor balkong på 14 m², med gode solforhold, perfekt for å nyte jordbær med fløte eller en iskaffe på varme sommerdager. Fra hovedsoverommet i første etasje kommer du rett ut til en markterrasse som gir hagefølelsen tett på.

Fellesområder
Pent opparbeidet uteområde med benker og lekeplass for de små.

Sikringsordning: Borettslaget vil bli søkt innmeldt i borettslagenes sikringsordning.

Beliggenhet
Salhus er et aktivt og etablert bolig- og næringsområde ca. 2 km nord for Brønnøysund sentrum. Det er fra Salhus kort vei til det meste av fasiliteter man måtte trenge i hverdagen. Her nevnes bl.a. flere matbutikker som Rema1000, Spar og Coop. Fra boligen er det gangavstand til Salhus Barne- og Ungdomsskole, ballbinge og sandvolleyballbane. Boligfeltet består i stor grad av eneboliger, rekkehus og borettslag hvorav en god del av husholdningene er barnefamilier.

Adkomst
Fra Brønnøysund sentrum kjører du Sømnaveien i ca. 2 km før du tar til høyre inn Industriveien. Følg denne veien i ca. 300 m og ta til høyre inn Svaleveien. Herfra kjører du ca. 200 m til du får borettslaget på din venstre hånd.

Meld interesse

Din kontaktinformasjon

Din melding

Ved å sende inn skjema opprettes det en brukerprofil på nordbohus.no, og dine opplysninger lagres i vår digitale løsning. Utfyllende informasjon om behandlingen og hvordan du kan slette din profil finner du i vår personvernerklæring. Nordbohus vil sende deg nyhetsbrev basert på ditt kundeforhold hos oss. Dersom du ønsker å reservere deg mot nyhetsbrev, gjør du det enkelt ved å krysse av nedenfor.