Hopp til hovedinnhold
1 / 0

Familiebolig med smart planløsning og god romfølelse

Håjenbakken 2850 Lena
Pris fra
4 662 500 kr
Tor-Atle Fuglerud
Daglig leder

Nøkkelinfo

  • Soverom

    5
  • Eierform

    Selveier
  • Boligtype

    Enebolig
  • Gårdsnr.

    236
  • Bruksnr.

    105

Familiebolig med smart planløsning og god romfølelse

En prisgunstig familiebolig med inntil 5 soverom, to bad og loftstue. Boligen kan godkjennes for Husbankfinansiering. Jubileum er utviklet med 40 års erfaring av Nordbohus Innlandet – med en planløsning som gir god flyt, mye dagslys og fleksibilitet gjennom ulike livsfaser.

Jubileum er en moderne enebolig for familier som ønsker god bokvalitet og praktiske løsninger.

Planløsningen er tegnet for å gjøre hverdagen enklere: tydelig skille mellom sosiale soner og private rom, god oppbevaring, og rom som kan endre funksjon når familiens størrelse og behov endrer seg.

Pris i annonsen er tomt Håjenbakken 10 til kr 748.000, samt boligmodell Jubileum SmartStart – 1. etg leveres med MDF Smartpanel i alle oppholdsrom. Baderomspanel på bad. Laminatgulv. Komplett rør og elektrikerleveranse. 2.etg leveres uinnredet med delingsvegger.

I tillegg til prisen kommer graving + offentlige gebyrer.

Boligen kan leveres i 7 variasjoner.

Jubileum El-klar – Boligen leveres klar for elektriker. Innvendige vegger er ikke kledd og er en god løsning for dere som ønsker å tilføre prosjektet egeninnsats. I dette alternativer er ikke grunnmur inkludert i prisen.

Jubileum SmartStart – 1. etg leveres med MDF Smartpanel i alle oppholdsrom. Baderomspanel på bad. Laminatgulv. Komplett rør og elektrikerleveranse. 2.etg leveres uinnredet med delingsvegger.

Jubileum – Leveres med MDF Smartpanel i alle oppholdsrom. Baderomspanel på bad. Laminatgulv. Komplett rør og elektrikerleveranse.

Jubileum Premium – Leveres med malt gips og listefrie avslutninger mot tak i alle oppholdsrom. Flislagte bad. Parkettgulv. Komplett rør og elektrikerleveranse

Jubileum ARK SmartStart – Boligen leveres med samme standard som Jubileum SmartStart, men leveres i tillegg med en ark som gjør at romfølelsen i loftstuen økes

Jubileum ARK – Boligen leveres med samme standard som Jubileum, men leveres i tillegg med en ark som gjør at romfølelsen i loftstuen økes

Jubileum ARK Premium – Leveres med samme standard som Jubileum Premium, men leveres i tillegg med en ark som gjør at romfølelsen i loftstuen økes

Hvorfor velge Jubileum?

  • Prisgunstig – høy verdi per kvadratmeter
  • Inntil 5 soverom – plass til alle
  • Åpen stue/kjøkken – god plass til hele familien
  • To bad – mindre kø i hverdagen
  • Loftstue – ekstra sone for barn og voksne

Planløsning som gjør hverdagen enklere

Hovedetasje: Samvær, flyt og fleksibilitet

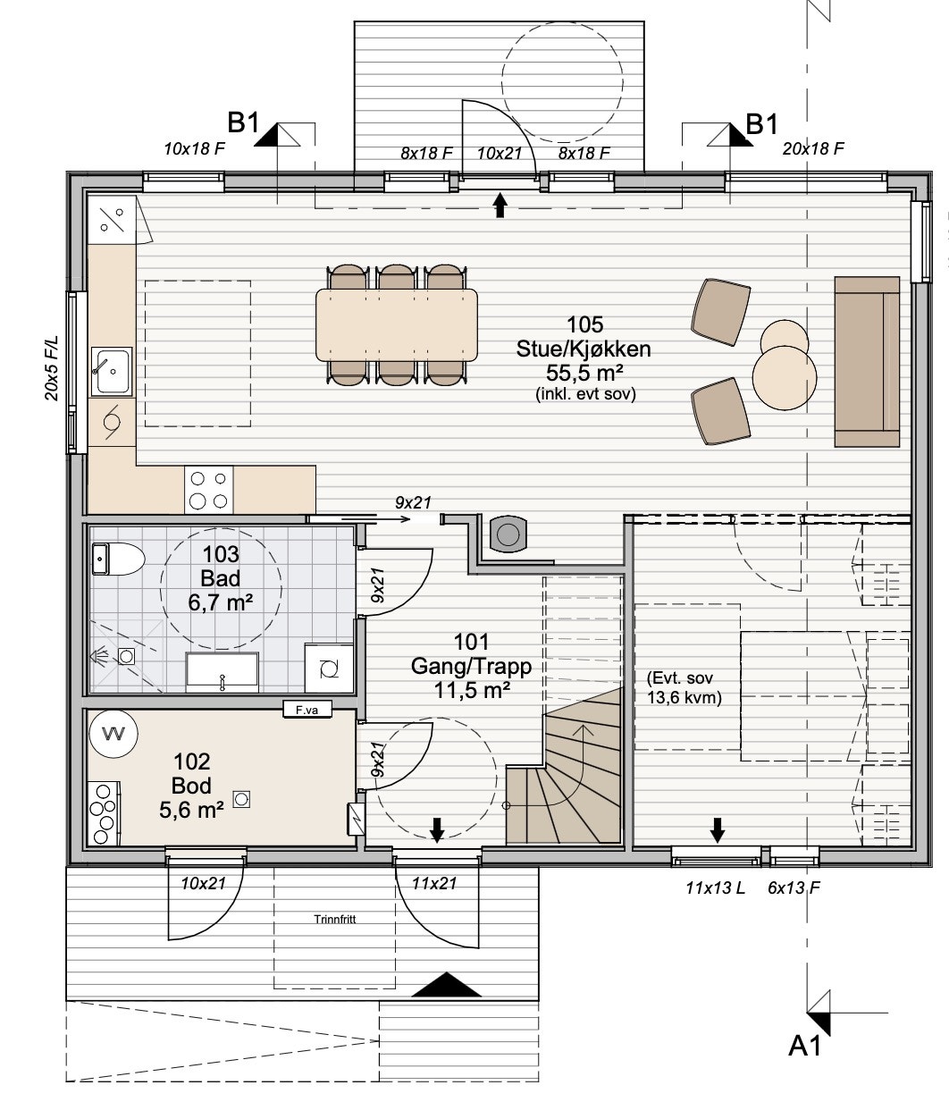
Hovedetasjen er tegnet for hverdagsliv og besøk. Den åpne stue- og kjøkkenløsningen på hele 55,5 m2 gir plass til både langbord og sofagruppe – og store vindusflater gir godt dagslys og direkte utgang til terrasse.
I tillegg er det tenkt praktisk:

  • Romslig gang med god garderobeplass
  • Bad i 1. etasje med dusj
  • Teknisk bod/vaskerom nær inngangen - også med direkte tilgang fra utsiden

Behov for soverom på hovedplan?

Boligen er klargjort for at deler av stue/kjøkken kan etableres som et ekstra soverom på ca. 13,6 m². Det gir ekstra fleksibilitet – og kan være et godt valg for livsfaseendringer, hjemmekontor eller gjesterom.
Andre etasje: Privat sone med loftstue som høydepunkt

I andre etasje ligger familiens private avdeling med fire soverom og en lys loftstue. Loftstuen (ca. 9,8 m²) har et markant vindusparti som gir både særpreg og ekstra dagslys – perfekt som TV-stue, gaming-/ lekesone eller et roligere oppholdsrom.
Her får dere også:

  • Bad nr. 2 (med mulighet for badekar) - en stor fordel for travle familier
  • God arealutnyttelse og smarte romstørrelser

Området

Håjenbakken ligger fritt og fint til med god utsikt utover Lena. Kort veg til alle sentrumsfunksjonene og offentlige tjenester som finnes i kommunesenteret til Østre Toten.

Er du/ dere av de mer friluftsinteresserte, så er det kort vei opp på Totenåsen med milevis av turstier og skiløyper avhengig av årstid.

Området kjennetegnes av å være et rikt kulturlandskap med levende gårder i nærheten.

Tomten

Tomta er på 1384,5 kvm og ligger sentralt til på Håjenbakken boligfelt. Et solrikt område, med gangavstand inn til Lena sentrum.

Tomten er tilknyttet offentlig vann og avløp.