Hopp til hovedinnhold
1 / 0

Brøttum - Praktisk og innholdsrik enebolig - 4/5 SOV og 2 BAD

Amlisvegen 53 2372 Brøttum
Pris fra
5 250 000 kr
Kenneth Ruud
Boligrådgiver
Prosjektet bygges av

Nordbohus Innlandet avd. Lillehammer

Nordbohus Innlandet - Avd. Lillehammer har 40 års erfaring med bygging og salg av boliger, tomannsboliger, fritidsboliger, leiligheter/leilighetskomplekser og garasjer. Er du på utkikk etter ny bolig eller fritidsbolig, så kan vi bistå deg.

Gå til forhandlersiden

Nøkkelinfo

  • Soverom

    4
  • Eierform

    Eier (Selveier)
  • Boligtype

    Enebolig
  • Gårdsnr.

    416
  • Bruksnr.

    74

Hva er inkludert i prisen

  • Komplett bolig
  • Tomt
  • Betongplate


Grunnarbeider og offentlige gebyrer er ikke inkludert.

Estimat:

  • Grunnarbeider: 310.000,-
  • Offentlige gebyrer: 170.000,- (byggesøknad, ferdigattest, tilkobling vann -og avløp)

Beskrivelse

Nordbohus Innlandet fyller 40 år! Det markerer vi med en helt ny bolig.

Boligen Jubileum er utviklet med 40 års erfaring av Nordbohus Innlandet – med en planløsning som gir god flyt, mye dagslys og fleksibilitet gjennom ulike livsfaser.

En prisgunstig familiebolig med inntil 5 soverom, to bad og loftstue.



Familiebolig med smart planløsning og god romfølelse

Jubileum er en moderne enebolig for familier som ønsker god bokvalitet og praktiske løsninger.

Planløsningen er tegnet for å gjøre hverdagen enklere: tydelig skille mellom sosiale soner og private rom, god oppbevaring, og rom som kan endre funksjon når familiens størrelse og behov endrer seg.

Hvorfor velge Jubileum?

· Prisgunstig – høy verdi per kvadratmeter
· Inntil 5 soverom – plass til alle
· Åpen stue/kjøkken – god plass til hele familien
· To bad – mindre kø i hverdagen
· Loftstue – ekstra sone for barn og voksne
Jubileum er en moderne og familievennlig bolig med optimal planløsning og loftstue
Jubileum er en innholdsrik og moderne bolig utviklet med tanke på praktisk bruk og bokvalitet. Her får du en bolig som vokser med familien, preget av godt lysinnslipp, smarte løsninger og god flyt mellom etasjene.

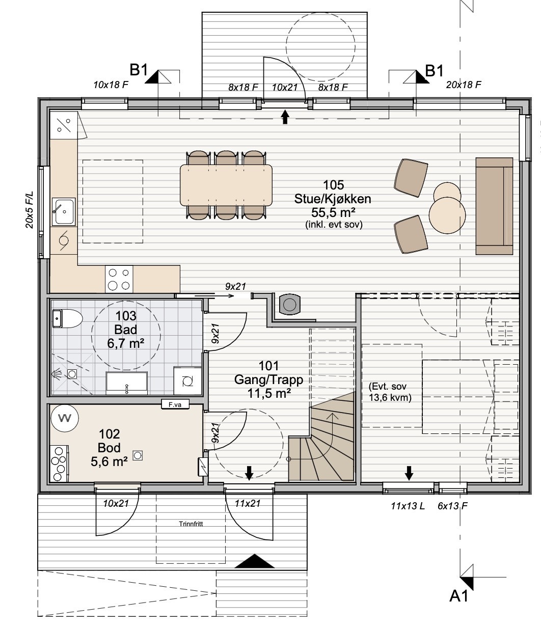
Hovedetasje: Sosiale soner og god fleksibilitet
Første etasje er boligens hjerte, designet for samvær og hverdagskomfort. Det åpne stue- og kjøkkenlandskapet på hele 55,5 m2 gir rikelig plass til både langbord og sofagruppe – perfekt for sosiale sammenkomster.

  • Åpen stue/kjøkkenløsning: Store vindusflater sikrer godt dagslys og direkte utgang til terrasse.
  • Fleksibilitet: Behov for et ekstra soverom på grunnplanet? Arealet er klargjort for enkel etablering av et soverom på 13,6 m2 uten at det går på bekostning av den gode romfølelsen.
  • Praktisk logistikk: Romslig gang (11,5 m2) med god plass til garderobe, samt direkte tilgang til et moderne bad og en praktisk teknisk bod/vaskerom.


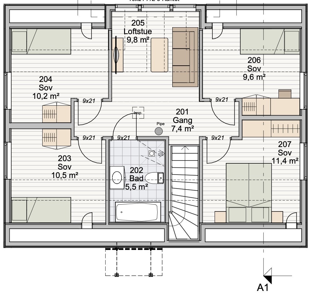
Andre etasje: Privat sone med særpreg
Andre etasje fungerer som familiens private avdeling, med hele fire soverom og en lys loftstue.

  • Fire gode soverom: Etasjen rommer fire soverom fra 9,6 m2 til 11,4 m2, alle strategisk plassert for å utnytte arealet best mulig.
  • Loftstue (9,8 m2): Boligens store "høydepunkt". Med sin karakteristiske vindusfasade og gode takhøyde, er dette det perfekte oppholdsrommet for barn og ungdom, eller en rolig sone for filmkvelder.
  • Bad nr. 2: Etasjen har eget baderom med badekar – en nødvendighet i en travel familiehverdag.

Hva skiller de 7 ulike Jubileum variantene?
Jubileum El-klar – Boligen leveres klar for elektriker. Innvendige vegger er ikke kledd og er en god løsning for dere som ønsker å tilføre prosjektet egeninnsats.

Jubileum SmartStart – 1. etg leveres med MDF Smartpanel i alle oppholdsrom. Baderomspanel på bad. Laminatgulv. Komplett rør og elektrikerleveranse. 2.etg leveres uinnredet med delingsvegger.

Jubileum – Leveres med MDF Smartpanel i alle oppholdsrom. Baderomspanel på bad. Laminatgulv. Komplett rør og elektrikerleveranse.

Jubileum Premium – Leveres med malt gips og listefrie avslutninger mot tak i alle oppholdsrom. Flislagte bad. Parkettgulv. Komplett rør og elektrikerleveranse

Jubileum ARK SmartStart – Boligen leveres med samme standard som Jubileum SmartStart, men leveres i tillegg med en ark som gjør at romfølelsen i loftstuen økes

Jubileum ARK – Boligen leveres med samme standard som Jubileum, men leveres i tillegg med en ark som gjør at romfølelsen i loftstuen økes

Jubileum ARK Premium – Leveres med samme standard som Jubileum Premium, men leveres i tillegg med en ark som gjør at romfølelsen i loftstuen økes
Forsalg løsning
I dette alternativet har vi valgt varianten "Jubileum".

Jubileum – Leveres med MDF Smartpanel i alle oppholdsrom. Baderomspanel på bad. Laminatgulv. Komplett rør og elektrikerleveranse.

Området

mslia er det perfekte valget for deg som ønsker å bo i naturskjønne og landlige omgivelser, samtidig som du har kort avstand til alt du trenger i hverdagen.

  • Nærhet til Naturen: Lysløyper og turstier ligger rett ved boligfeltet, og Sjusjøen tilbyr flotte muligheter for både langrenn og alpint.
  • Sentral Plassering: Kun 15 minutter med bil til Lillehammer sentrum og 20 minutter til Moelv.


Praktisk og familievennlig:

  • Barnehage og skole: Området har både barnehage, skole og idrettsplass i nærheten, noe som gjør det ideelt for barnefamilier.
  • Nærbutikk: Kort avstand til dagligvarehandel.


Et aktivt og variert liv:
Bo i et flott kulturlandskap med spredt bosetting, hvor du kan dyrke friluftsliv, delta i et variert kulturtilbud og utforske spennende muligheter innen arbeids- og næringsliv.

Meld interesse

Din kontaktinformasjon

Din melding

Ved å sende inn skjema opprettes det en brukerprofil på nordbohus.no, og dine opplysninger lagres i vår digitale løsning. Utfyllende informasjon om behandlingen og hvordan du kan slette din profil finner du i vår personvernerklæring. Nordbohus vil sende deg nyhetsbrev basert på ditt kundeforhold hos oss. Dersom du ønsker å reservere deg mot nyhetsbrev, gjør du det enkelt ved å krysse av nedenfor.