no-nordbohus-steinsvikhusogentreprenor
project
1 / 0
Arnulv Steinsvik
Prosjektet bygges av
Nøkkelinfo
Soverom
5
Eierform
Eier (Selveier)
Boligtype
Leilighet
Gårdsnr.
66
Bruksnr.
348
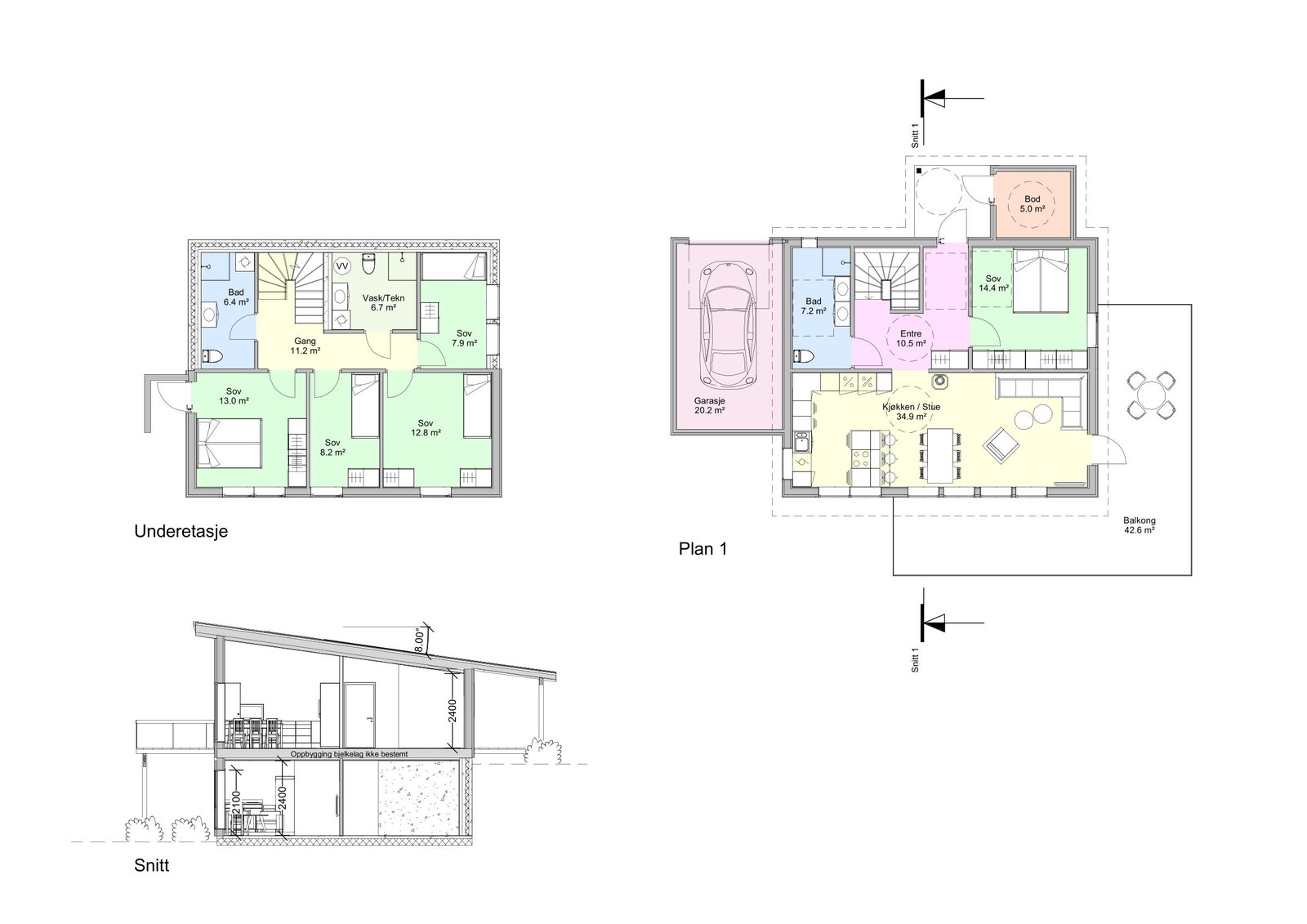
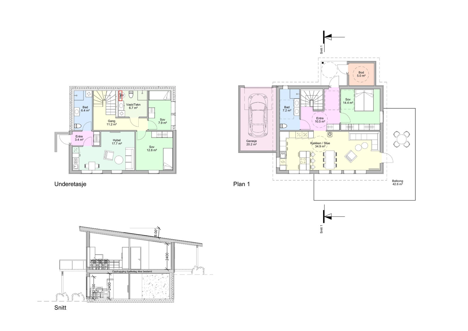
Enebolig med utleie/enebolig med 4 soverom - Husbankfinansiering
Godt planlagt enebolig til salgs i etablert boligområde. Boligen kan leveres med inntil 5 soverom, 2 bad + vaskerom. Eller med 3 soverom, 2 bad/vaskerom + utleieenhet med 1 soverom stue/kjøkken og bad. Evt. med 3 soverom, 2 bad/vaskerom + hybelleilighet.
Mulighet for Husbankfinansiering med markedets beste rente pt. 4% rente.
