Villa Lilla 2
Nøkkelinformasjon
Laster pris
Soverom
Grunnflate (BYA)
Bruksareal (BRA)
Største lengde
Største bredde
Villa Lilla 2, et smykke blant eneboliger fra Nordbohus, byr på en kombinasjon av smarte løsninger og elegant design som gjør hverdagen både komfortabel og praktisk.
Ved første øyekast møtes du av en innbydende gang som gradvis utvider seg innover i huset, og skaper en følelse av romslighet og velkomst. Denne effektive utnyttelsen av plass gjennom hele huset er en gjennomgående egenskap ved Villa Lilla 2.
Optimalisert plassutnyttelse
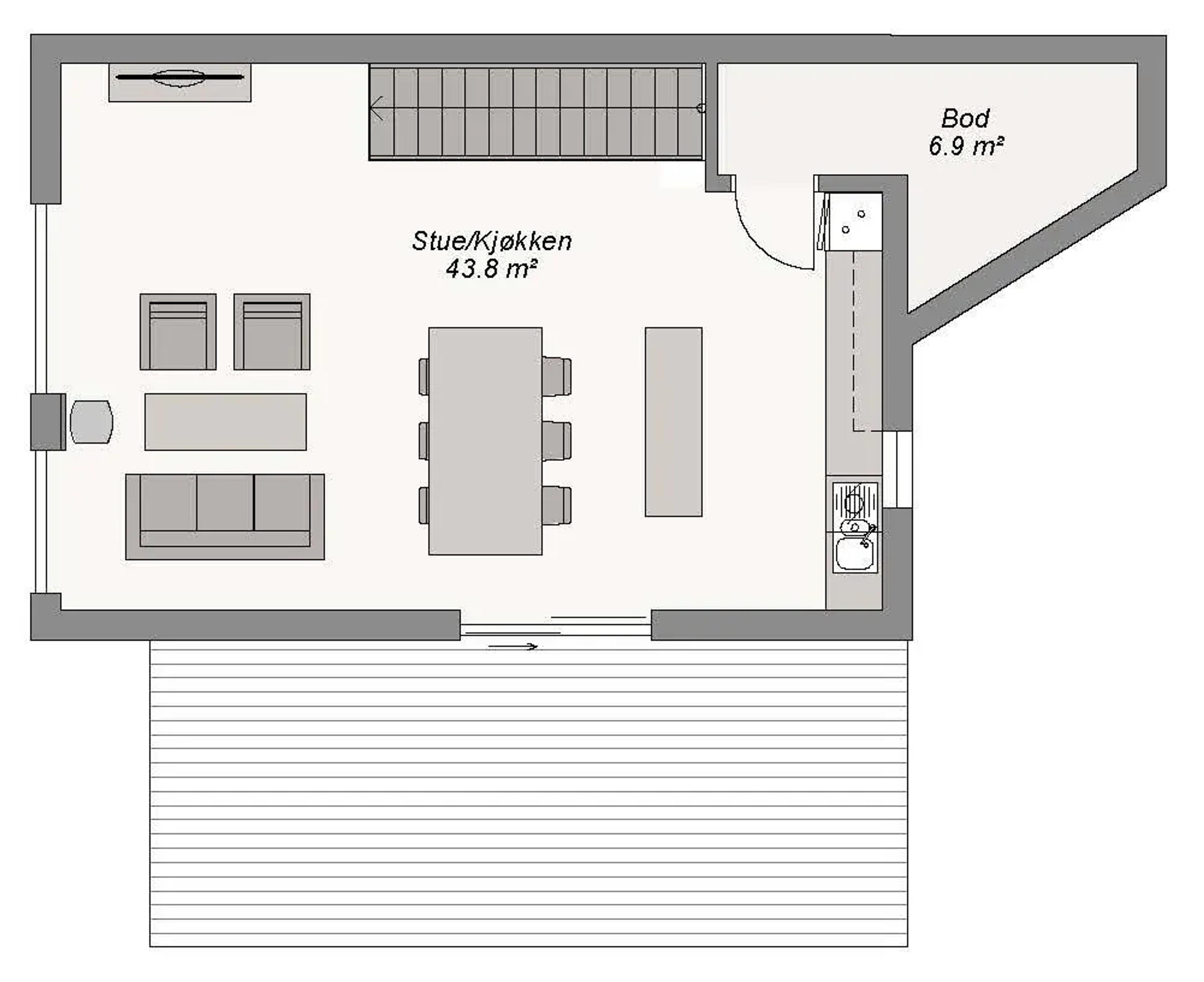
I første etasje finner du tre koselige soverom, et moderne bad og et praktisk teknisk rom – alt strategisk plassert for å optimalisere beboernes komfort og funksjonalitet. Her ligger også en sportsbod med egen inngang, som tilbyr en smidig løsning for lagring av alt fra sykler til hageutstyr.
Den andre etasjen er hjemmet til hjertet av huset – en lys og luftig stue som smelter sammen med et moderne kjøkken, skapt for både sosiale sammenkomster og avslappende stunder hjemme. I denne etasjen er det også en romslig takterrasse som inviterer til utendørs liv og hygge. Med rikelig med plass til både avslapning og underholdning, er dette en perfekt oase for å nyte solnedganger og gode samtaler med venner og familie.
Funksjonalitet og komfort i fokus
Villa Lilla 2 inkorporerer ikke bare stil og funksjonalitet, men skaper også et hjem hvor beboerne kan trives og skape minner. Med sitt smarte design og gjennomtenkte planløsning demonstrerer denne eneboligen Nordbohus' forpliktelse til å tilby boliger som ikke bare oppfyller, men overgår, forventningene til moderne livsstil og komfort.
Inspirert av tradisjon og håndverk
Designet av arkitekt Else Dahlseng, ble Villa Lilla 2 konseptualisert gjennom en kreativ prosess som tok inspirasjon fra kunsthåndverk, særlig strikkemønstre og treskjæringstradisjoner. Ved å dykke ned i detaljene av disse tradisjonene, overførte arkitektene teknikkene fra håndverket til boligdesign.
Dette gamle håndverket har blitt transformert til en ny form. Vi har brukt strikketeknikker for å forme bygget, tilført og fjernet mønstre etter behov, akkurat som man ville gjort med strikketøyet, forklarer arkitekt Else Dahlseng.

Navnet "Villa Lilla 2" ble ikke valgt tilfeldig. "Lilla" bærer med seg dype betydninger som fred, magi, og hensikt. I blomsterspråket symboliserer den ønsket om lykke og hell i livet, noe som var en passende inspirasjon for navnet på dette hjemmet.
Åpenhet og interaksjon
Villa Lilla 2 er utformet med et luftig og åpent design som fremmer interaksjon mellom mennesker. Det åpne dagligrommet skaper en ideell arena for samvær, med sin romslige takhøyde og store vindusflater som slipper inn rikelig med naturlig lys og gir en fantastisk utsikt.
Arkitekten legger vekt på funksjonalitet for kundene. Studien av strikkemønstrene bidro til å reflektere over hvordan mennesker opplever og samhandler med ulike rom i huset. Dette resulterte i strategiske beslutninger, som ekstra takhøyde i stue og kjøkken, for å skape et miljø som ikke bare er vakkert, men også praktisk og funksjonelt.
Villa Lilla 2 er et mesterverk som ikke bare tar form gjennom design, men gjennom en nøye gjennomtenkt tilnærming til hvordan mennesker lever og samhandler med sine omgivelser.
Plan- og fasadetegninger:
Ønsker du en annen plantegning?
Modellen kan tilpasses dine behov, og både dimensjoner, rom og planløsning kan endres slik du vil ha det.





