Sammen
Nøkkelinformasjon
Laster pris
Soverom
Grunnflate (BYA)
Bruksareal (BRA)
Internt bruksareal (BRA-i)
Eksternt bruksareal (BRA-e)
Største lengde
Største bredde
Sammen er en tomannsbolig med to unike boliger.
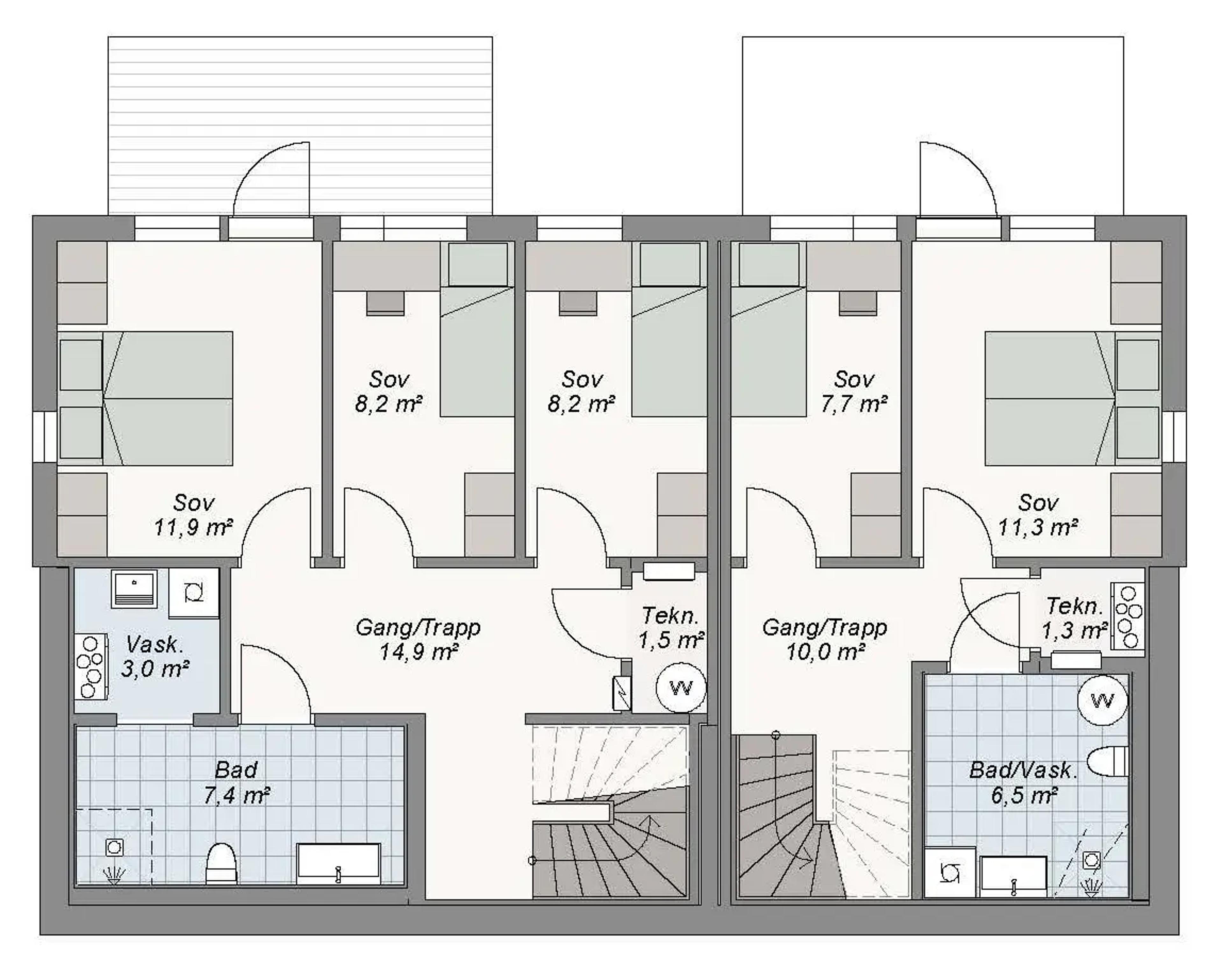
Sammen tilbyr to ulike boliger, hvor den største har en størrelse på 130 kvm BRA, mens den andre måler 88 kvm BRA. Begge boligene har egne terrasser og en praktisk sportsbod like ved inngangen.
Moderne oppgradering med robust design
Den populære tomannsboligen har fått en stilig oppgradering som gir et robust og rent uttrykk. Innglassede verandaer med utgang fra stue gir en luftig følelse under vingene. Terrassen på bakkeplan er ideell for å slappe av etter en lekestund i hagen med hele familien. Sammen er en bolig for liten, stor og midt imellom, og passer dermed for familier i alle faser av livet.
Lys og åpen planløsning
Inne kan du bade i dagslyset og vandre sømløst mellom stue og kjøkken. Den åpne planløsningen skaper en romslig og innbydende atmosfære som er perfekt for både hverdag og fest. Andre etasje er en stor og trivelig del av huset å være i, med god plass til både avslapning og aktiviteter.
Både utvendig og innvendig er Sammen preget av et moderne formspråk med rene linjer og funksjonelle løsninger som gjør hverdagen enklere.

Moderne design med praktiske løsninger
Med egen bod får du plass til ting og utstyr, noe som gjør det enkelt å holde orden i hjemmet. Den største boligen har et ekstra bad, soverom og enda en bod, noe som gir ekstra komfort og fleksibilitet for større familier eller de som ønsker mer plass.
Sammen, men separat
I Sammen bor dere side ved side, men har fortsatt en verden for dere selv. Denne tomannsboligen gir deg muligheten til å nyte nærhet til naboene dine, samtidig som du har ditt eget private rom. Sammen gir den perfekte balansen mellom fellesskap og privatliv.
Med sitt moderne design og praktiske planløsninger tilbyr denne tomannsboligen en komfortabel og funksjonell livsstil som inviterer til fellesskap og trivsel.
Plan- og fasadetegninger:
Ønsker du en annen plantegning?
Alle våre modeller kan tilpasses dine behov, og både dimensjoner, rom og planløsning kan endres slik du vil ha det





