Hopp til hovedinnhold
1 / 0

Midtmoen - 1 SOLGT Skap familiens drømmebolig sentralt på Vinstra - kort vei til skole og barnehage

Midtmoen 9 2640 Vinstra
Pris fra
3 790 000 kr
Kenneth Ruud
Boligrådgiver
Prosjektet bygges av

Nordbohus Innlandet avd. Vinstra

Nordbohus Innlandet Avd. Vinstra har siden 1979 vært en ledende bolig- og fritidsboligutbygger i Gudbrandsdalen. Vi er en lokal, solid og trygg boligbygger med over 40 års erfaring i markedet. Nordbohus Innlandet har vært en del av Nordbohus siden kjedens oppstart i 1985. Med sterk forankring i lokalmiljøet, og solid faglig erfaring i byggfaget, leverer Nordbohus Innlandet boliger som varer i generasjoner.

Gå til forhandlersiden

Nøkkelinfo

  • Soverom

    2
  • Eierform

    Selveier
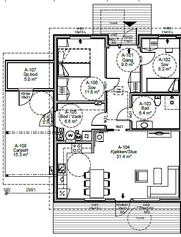
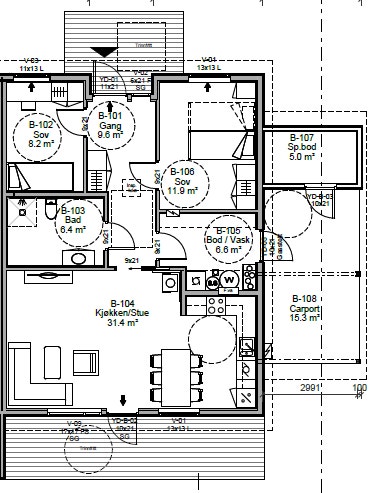
  • Primærrom

    78 m2
  • Gårdsnr.

    248
  • Bruksnr.

    231

Om prosjektet!

Midtmoen boligfelt ligger sentralt til på Vinstra, med kort vei til sentrumstilbud, skole og barnehage.

Her bor du i rolige omgivelser, med enkel adkomst til hverdagens gjøremål og fine turmuligheter i året rundt.

Om boligene

Er lavt strømforbruk viktig for deg?

  • Lavere strømutgifter hver måned gir mer rom i budsjettet – en bolig som "jobber for deg" økonomisk.
  • Jevn temperatur og bedre inneklima året rundt – takket være moderne isolasjon og ventilasjon.
  • Energieffektive boliger er mer attraktive i bruktmarkedet og står seg bedre over tid.


Andre kvaliteter ved boligene:

  • 2 soverom, bad med plass til vaskemaskin,
  • Åpen stue–kjøkkenløsning
  • Utvendig bod og biloppstillingsplass
  • Energikarakter B på nye boliger – kan kvalifisere til grønt boliglån
  • Trekkerør for bredbånd frem til yttervegg (installasjon bestilles av kjøper)

200 000 i kommunal refusjon – Nord-Fron

Nord-Fron kommune har en refusjonsordning som gir kjøpere av nye boliger 200 000 kroner i kostnadsreduksjon.

Du kan med andre ord trekke fra 200.000 kroner på oppgitt kjøpspris på disse boligene.

Ordningen gjelder etter kommunens regler og vilkår.

Ta kontakt for informasjon om hvordan du benytter dette ved kjøp av bolig på Midtmoen.

Viktige økonomiske fordeler

Hvitevarer er inkludert i prisen (kombiskap, komfyr og oppvaskmaskin)
Du betaler ingenting før overtakelse – gir forutsigbarhet
Lav dokumentavgift – kun 2,5 % av tomtepris (ikke av hele kjøpesummen)
Ingen oppussing – lave vedlikeholdskostnader fra dag én
5 års reklamasjonsrett – ekstra trygghet for deg som kunde

Derfor Midtmoen

  • Etablert og familievennlig boligfelt med gode solforhold
  • Kort vei til handel, idrett og fritidstilbud på Vinstra
  • Turstier, sykkelmuligheter og skiløyper i nærområdet


Meld interesse i dag for komplett salgsinformasjon, leveransebeskrivelse og planløsninger – og få veiledning til hvordan du søker kommunal refusjon på 200 000 kroner.

Det er mange fordeler ved å velge en ny bolig fra Nordbohus Innlandet

Å kjøpe ny bolig har mange fordeler.
Man kan skape nye tradisjoner i et hjem som ingen andre har bodd i før deg – det er noe spesielt ved det. Det er også en del økonomiske og tekniske fordeler ved å kjøpe ny bolig. Noen eksempler på dette er:

Det er trygt og forutsigbart: Vi er en aktør som har vært i markedet i nærmere 40 år. Vi har lang erfaring, god og solid økonomi, lokalt eierskap som er og alltid har vært opptatt av å levere som avtalt.

Ingen forhåndsbetaling:
Nordbohus Innlandet krever ikke noen forhåndsbetaling, noe som betyr at man bare betaler når man faktisk tar over boligen. Dette gir en økonomisk trygghet og tid til å forberede finansene. Lav dokumentavgift

Du betaler kun 2,5 % dokumentavgift av tomteprisen - ikke av hele kjøpesummen som ved kjøp av brukt bolig. Her kan det være titusener å spare.

Ingen oppussing:
En annen stor fordel er at utgiftene forbundet med oppussing er redusert, ettersom du slipper de løpende vedlikeholdsutgiftene som ofte følger med eldre boliger. Dette gir deg mer penger til overs til andre ting i livet.

Nytt og energisparende:
Energieffektivitet er en annen viktig fordel ved å kjøpe en ny bolig. Disse boligene er utformet for å minimere energiforbruk og kostnader knyttet til oppvarming, slik at du kan spare både penger og miljøet.

Bare nytt er nytt...
Det er noe eget forbundet med å bosette seg i et splitter nytt hjem. Et hjem som bare du og dine kjære har bodd i. Et nytt hus gir rom for dine kreative uttrykk og lar deg skape en plass som er genuint din.

Til slutt er en av de beste fordelene ved å kjøpe ny bolig det faktum at man har en reklamasjonsrettighet på fem år. Dette gir deg en ekstra trygghet når det gjelder boligens kvalitet.

Meld interesse

Din kontaktinformasjon

Din melding

Ved å sende inn skjema opprettes det en brukerprofil på nordbohus.no, og dine opplysninger lagres i vår digitale løsning. Utfyllende informasjon om behandlingen og hvordan du kan slette din profil finner du i vår personvernerklæring. Nordbohus vil sende deg nyhetsbrev basert på ditt kundeforhold hos oss. Dersom du ønsker å reservere deg mot nyhetsbrev, gjør du det enkelt ved å krysse av nedenfor.