Hopp til hovedinnhold
1 / 0

Nye familieboliger i grønne omgivelser på Jessheim sørøst 🌿

Camilla H. Solheim
Daglig leder
Prosjektet bygges av

Nordbohus Romerike AS

Nordbohus Romerike utvikler boligprosjekter, bygger og selger nye boliger, tomannsboliger, rekkehus og townhouse - kort sagt; Vi bygger og selger boliger av alle slag.

Gå til forhandlersiden

Nøkkelinfo

Eierform

Eier (Selveier)

Boligtype

Enebolig

Moderne tomannsboliger og eneboliger i kjede – kort vei til Jessheim sentrum

Velkommen til et nytt og gjennomtenkt boligprosjekt i populære Jessheim sørøst – et område i sterk utvikling, omgitt av natur, barnevennlige omgivelser og moderne infrastruktur. Her planlegger vi to stilrene tomannsboliger og to praktiske eneboliger i kjede, alle med store takterrasser, perfekt for deg som ønsker et nytt hjem med kvalitet og ro, men samtidig nærhet til byliv og kollektivknutepunkt.
Pris fra kr. 9 550 000,-

Moderne eneboliger i kjede – kun 2 boliger med takterrasse, integrert garasje og gjennomtenkt planløsning

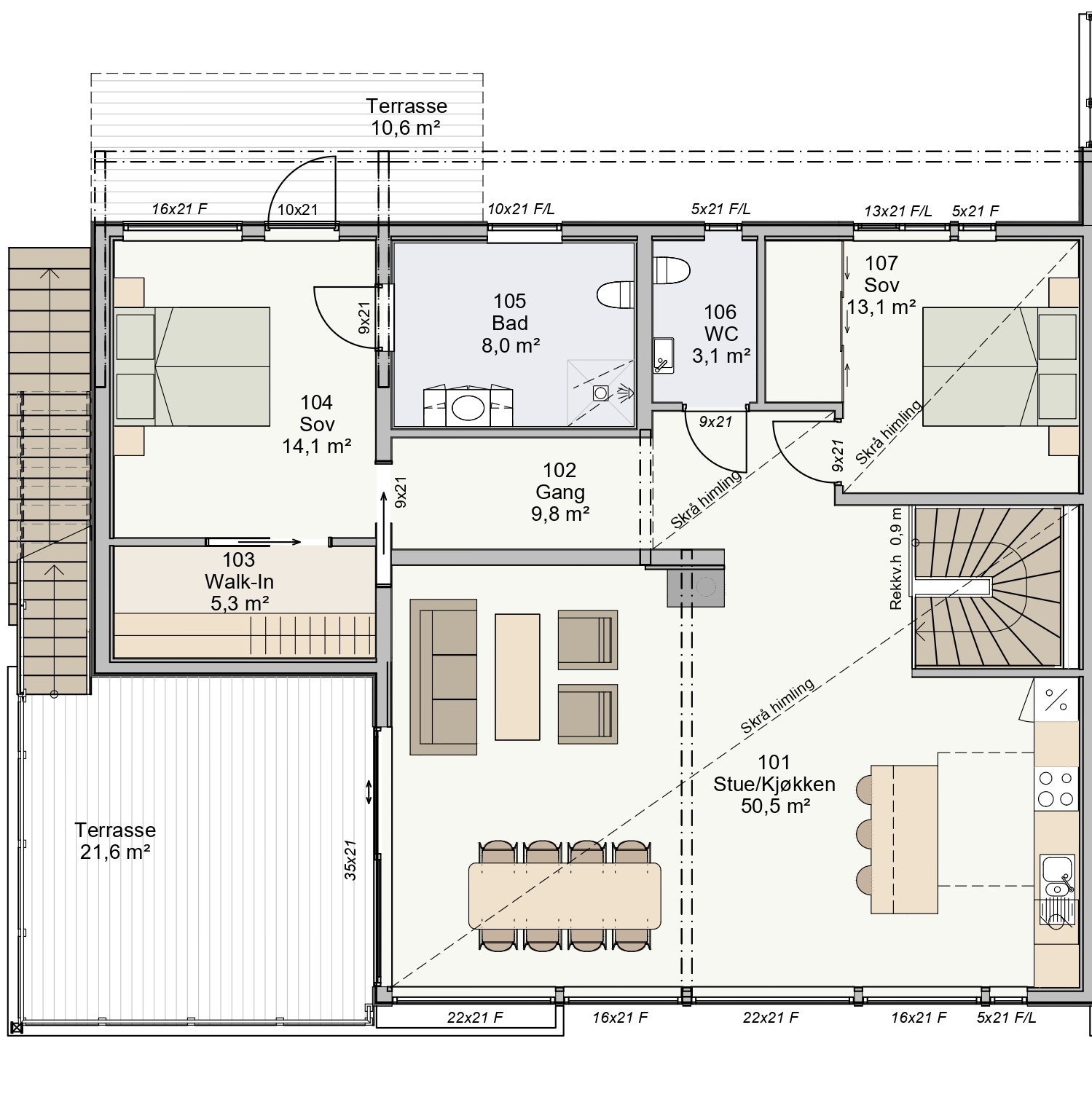
Disse to eneboligene i kjede er tegnet for deg som ønsker god plass, høy bokvalitet og moderne komfort. Boligene har integrert garasje med direkte adkomst til boligen, 4 soverom samt en kjellerstue som enkelt kan fungere som et femte soverom.
Stue- og kjøkkendelen har ekstra takhøyde og store vindusflater, som gir en lys og luftig atmosfære. Herfra har du utgang til en solrik terrasse på 22 m², som videre leder opp til en privat takterrasse på 23 m² – perfekt for både hverdager og sosiale anledninger.

Boligen inneholder:

  • 4 soverom + kjellerstue/evt. soverom 5
  • Hovedsoverom med eget bad og walk-in-garderobe
  • 2 bad, separat WC-rom og et stort vaskerom
  • Romslig stue/kjøkken med åpen løsning og ekstra takhøyde
  • Store vindusflater med rikelig dagslys
  • Integrert garasje med direkte adkomst
  • Privat terrasse og takterrasse – totalt 45 m² uteplass


Et sjeldent tilbud – her får du boligkvaliteter man vanligvis bare finner i frittliggende eneboliger, kombinert med lavere vedlikehold og mer praktiske løsninger.

Velg mellom tomannsbolig over to eller tre etasjer – begge med gjennomtenkte løsninger og moderne komfort
I dette prosjektet kan du også velge mellom to varianter av våre flotte tomannsboliger – begge med høy bokvalitet, god arealutnyttelse og rom for livets mange faser. Med inntil 4 soverom, 2-3 fullverdige bad og store oppholdsrom, får du et hjem som både er funksjonelt, moderne og tilrettelagt for familieliv.

🏡 Variant 1 – Romslig bolig over tre plan
Denne boligen gir deg ekstra fleksibilitet med en innholdsrik underetasje som kan fungere som ungdomsavdeling, hjemmekontor eller gjesteavdeling. Her finner du blant annet:

  • Kjellerstue med egen inngang, soverom og bad – perfekt for tenåringer eller gjester
  • Hovedplan med åpen stue og kjøkkenløsning, store vindusflater og mye lys
  • Totalt 4 soverom i boligen
  • Tre flotte flislagte bad
  • Stor og solrik takterrasse – ideell for sommerselskaper eller rolige kvelder


🏠 Variant 2 – Praktisk bolig over to plan
For deg som ønsker alt samlet over to etasjer, byr denne boligen på:

  • Arealeffektive løsninger med 3 soverom
  • To flotte flislagte bad
  • Romslig kjøkken og stue i åpen løsning med god plass til både hverdag og fest
  • Privat takterrasse – din egen oase i høyden


✨ Felles kvaliteter:

  • Store vindusflater og moderne materialvalg
  • Gjennomgående høy standard
  • Parkeringsløsning i dobbel carport eller garasje og gode uteområder
  • Energieffektive løsninger og lave driftskostnader
  • Beliggende i et barnevennlig og grønt område med nærhet til Jessheim sentrum, skole og natur


Disse boligene passer for familier i ulike faser som ønsker en bolig med langsiktig verdi og fleksibilitet.

Vil du være blant de første som får informasjon om priser og salgsstart? Meld din interesse i dag – og få muligheten til å sikre deg et nytt hjem i et av Jessheims mest lovende boligområder!

Meld interesse

Din kontaktinformasjon

Din melding

Ved å sende inn skjema opprettes det en brukerprofil på nordbohus.no, og dine opplysninger lagres i vår digitale løsning. Utfyllende informasjon om behandlingen og hvordan du kan slette din profil finner du i vår personvernerklæring. Nordbohus vil sende deg nyhetsbrev basert på ditt kundeforhold hos oss. Dersom du ønsker å reservere deg mot nyhetsbrev, gjør du det enkelt ved å krysse av nedenfor.