Hopp til hovedinnhold
1 / 0

Halvpart av tomannsbolig | Sentralt i Vikersund | Tre soverom

Oterveien 1 3370 Vikersund
Pris fra
4 690 000 kr
Hans Aasmundrud
Boligrådgiver
Prosjektet bygges av

Nordbohus Modum AS

Nordbohus Modum AS ble etablert i 2006, og er en del av Nordbohus-kjeden. Vi holder til i Vikersund og består av til sammen 18 faglig medarbeidere i administrasjonen og på byggeplass. Vi bygger i følgende kommuner: Modum, Drammen, Flesberg, Flå, Geilo, Gol, Hemsedal, Hol, Hole, Holmestrand, Horten, Jevnaker, Kongsberg, Krødsherad, Lier, Notodden, Ringerike, Sande, Sigdal, Øvre Eiker og Ål.

Gå til forhandlersiden

Nøkkelinfo

  • Soverom

    3
  • Eierform

    Selveier
  • Boligtype

    Tomannsbolig
  • Gårdsnr.

    91
  • Bruksnr.

    350

VELKOMMEN TIL HJORTVEIEN!

På dette solfylte boligområdet, hvor det skal bygges fem eneboliger og to tomannsboliger, er det hittil satt opp to eneboliger og en tomannsbolig. Vi ønsker nå å sette opp flere enheter. Hvis du er interessert i å bygge sentralt i Vikersund med kort avstand til skole, sentrum og fine turmuligheter kan dette være noe for deg.

Oterveien 1A: Kr. 4 690 000 + OMK
Oterveien 1B: Kr. 4 790 000 + OMK

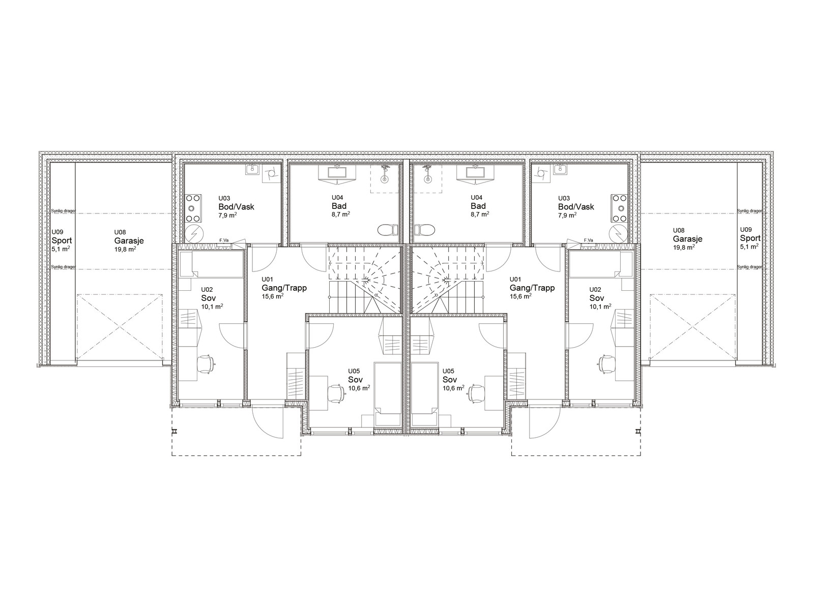
Tomannsboligen, pr. boenhet, består av stue/kjøkken, bod/vask, bad, WC med dusj og toalett, tre soverom og gang/trapp. Boligen har overbygget inngangsparti, integrert garasje med stor terrasse over og sportsbod.

Detaljer

  • Flislagte gulv med varmekabler (ytterste del av gang/trapp, bad og bod/teknisk
  • 3-stav eikeparkett, Abetone fra Kährs
  • Sigdal Kjøkken, Uno Snø m/integrerte hvitevarer
  • Baderomsinnredning fra Linn Bad
  • Malte gipsplater i alle rom, med unntak av bad
  • Listefrie himlinger
  • NORD kledning fra Bergene Holm


Det er mulig å endre innvendig materialvalg og kvaliteter som for eksempel kjøkken, fliser og gulv, mot ett tillegg i prisen.

Felleskostnader
Det er ikke fastsatt fellesutgifter fra utbygger for boligene. Dette vil avhenge av hva sameiet ønsker av tjenester. Sameiet består av de to boenhetene i denne tomannsboligen. Stipulerte felleskostnader kr. 750 pr. mnd. Estimert beløp er erfaringstall, og avhenger av de avtaler som sameiet til enhver tid har inngått.

Veivell
Ved kjøp av bolig i Hjortveien er det pliktig deltakelse i eget veivell.
Totalt 6-7 boenheter vil bli med i felles veivell og har ansvar for å besørge og bekoste brøyting, samt vedlikehold av privat vei.

Omkostninger
Rentekostnader i byggeperioden er inkludert i kjøpesummen. Følgende omkostninger påløper for kjøper:

  • Dokumentavgift til staten, 2,5% av tomtepris: ca. kr. 18 750
  • Tinglysing pr. hjemmelsdokument: kr. 585
  • Tinglysing pr. pantedokument: kr. 585
  • Attestgebyr: kr. 230


Garanti
Det vil bli stilt garanti fra utbygger til kjøper. Ved kjøp før ferdigstillelse utgjør garantien 3% i byggeperioden og 5% i garantiperioden på 5 år fra overtagelse, og er beregnet av opprinnelig kjøpesum mellom utbygger og kjøper.

Det tas forbehold om feil og mangler i denne annonsen. Det må regnes med små avvik på romstørrelse fra skissetegninger til byggesøknadstegninger/arbeidstegninger. Produkter/materialer og farger kan endres dersom utbygger ser behov for dette, frem til eneboligen er solgt.

Meld interesse

Din kontaktinformasjon

Din melding

Ved å sende inn skjema opprettes det en brukerprofil på nordbohus.no, og dine opplysninger lagres i vår digitale løsning. Utfyllende informasjon om behandlingen og hvordan du kan slette din profil finner du i vår personvernerklæring. Nordbohus vil sende deg nyhetsbrev basert på ditt kundeforhold hos oss. Dersom du ønsker å reservere deg mot nyhetsbrev, gjør du det enkelt ved å krysse av nedenfor.