Hopp til hovedinnhold
1 / 0

Kuba

Nøkkelinformasjon

Laster pris

Soverom

3

Grunnflate (BYA)

119.0 m²

Bruksareal (BRA)

160.90 m²

Største lengde

13.4 m

Største bredde

9.2 m

Med sine rene linjer og praktiske løsninger har Kuba blitt en soleklar favoritt blant de som setter pris på funkisstilen. Denne boligen har også fått oppmerksomhet i pressen takket være sine unike egenskaper som skiller den ut blant andre.

Lysfylte oppholdsarealer og unik tilgjengelighet

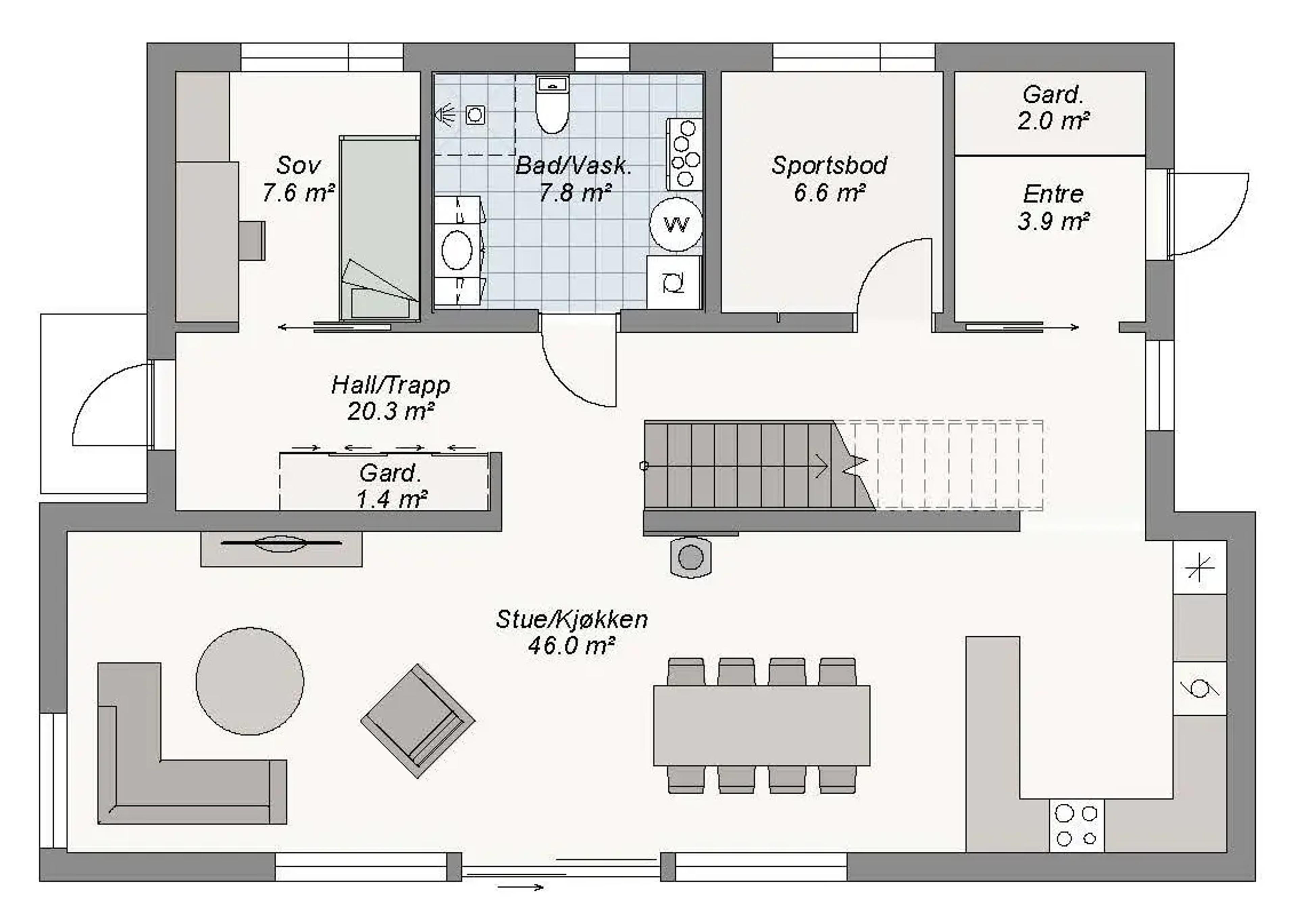
I Kuba boligen fylles oppholdsarealene med naturlig lys og panoramautsikt gjennom store vindusflater. En skyvedør fra stuen i første etasje fører deg direkte ut på den praktiske markterrassen, som utvider boarealet og inviterer til utendørs opplevelser.

Sosiale sone og skjermet takterrasse

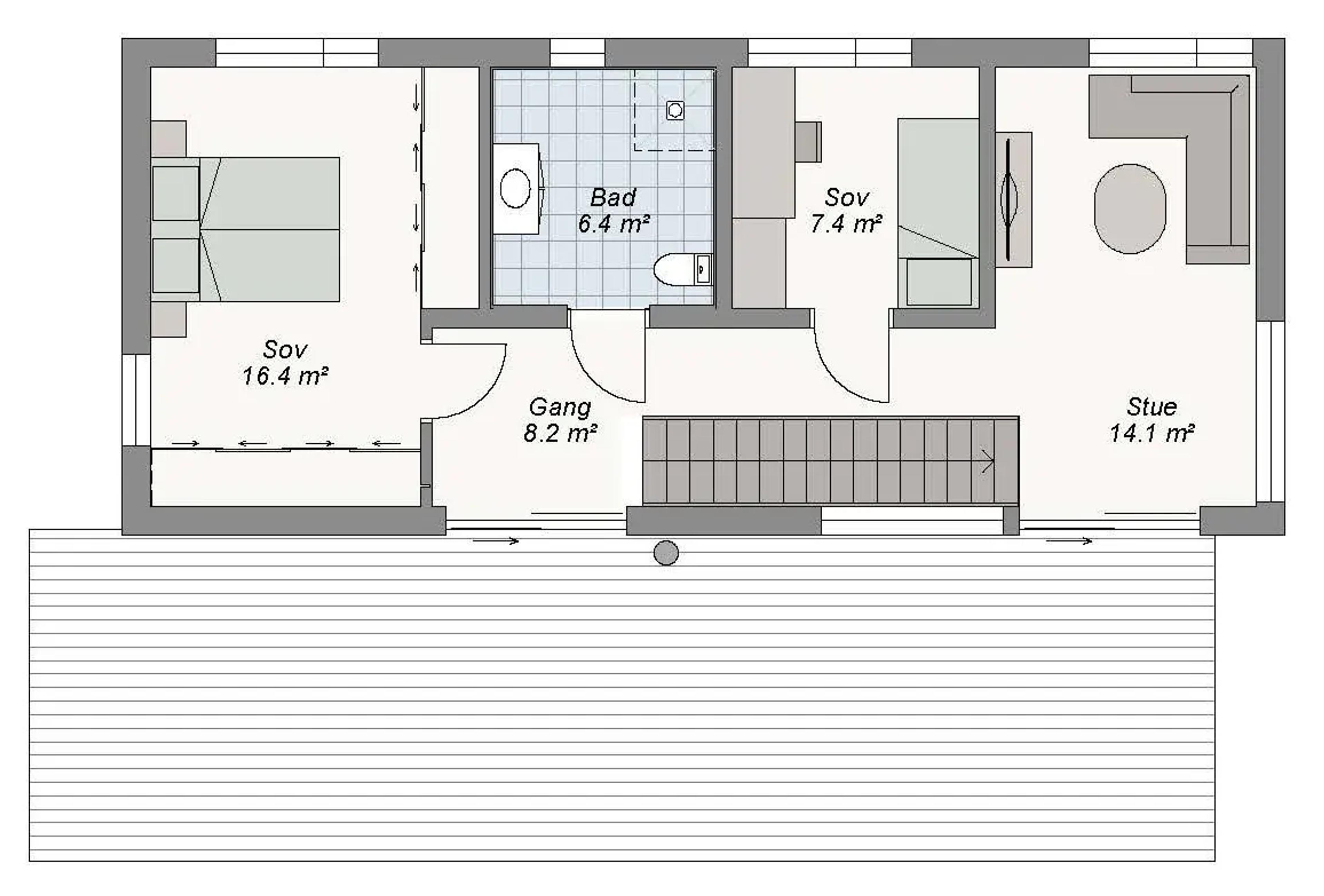
Opp trappen møtes du av en romslig og åpen sone som inkluderer både stue og kjøkken. Fra stuen har du enkel tilgang til den store og skjermede takterrassen, et ideelt sted for å arrangere sosiale sammenkomster med venner og familie, eller for å nyte solfylte dager i fred og ro. Med Kuba får du ikke bare et hjem, men en moderne bolig som legger til rette for både komfort og sosialt samvær på en enestående måte.

Plan- og fasadetegninger:

Ønsker du en annen plantegning?

Alle våre modeller kan tilpasses dine behov, og både dimensjoner, rom og planløsning kan endres slik du vil ha det

Andre liknende hus

Kontakt oss

Hva gjelder henvendelsen?

Din kontaktinformasjon

Hvor vil du bygge?

Hva kan vi hjelpe med?

Ved å sende inn skjema opprettes det en brukerprofil på nordbohus.no, og dine opplysninger lagres i vår digitale løsning. Utfyllende informasjon om behandlingen og hvordan du kan slette din profil finner du i vår personvernerklæring. Nordbohus vil sende deg nyhetsbrev basert på ditt kundeforhold hos oss. Dersom du ønsker å reservere deg mot nyhetsbrev, gjør du det enkelt ved å krysse av nedenfor.

Kuba | Nordbohus